OCCASIONE ZONA BORGO SAN PAOLO

70.500 €
96 m²
Superficie
4,5
Locali
2
Camere
1
Bagni
in vendita
appartamento
Torino [San Paolo]
Descrizione
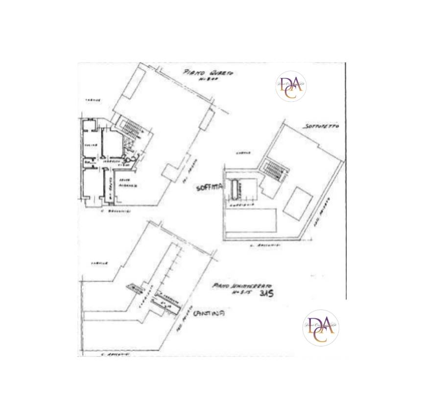
Al piano 4, alloggio composto da
2 camere
Tinello con cucinino
Servizi
2 ripostigli
Al piano soffit un vano
soffitta
Al piano sotterraneo: cantina


COSA FAREMO PER TE

1- PRIMO APPUNTAMENTO(Gratuito)
In ufficio un nostro consulente vi darà maggiori informazioni su come partecipare ad un’asta immobiliare, tempistiche, costi e modalità di acquisto.
Prenotazione e visita appartamento

Valuteremo anche acquisto in Pre Asta o con NPL.
Saremo noi stessi ad indicarti la soluzione migliore.

- ASSISTENZA PER ACQUISTO IN ASTA
- Apertura pratica
- Ricerca immobile scontata rispetto al libero mercato
- Valutazione globale dell’investimento
- Banca dati aggiornata
- Calcolo indice convenienza
- Valutazione valore di mercato
- Controlli sull’immobile ed eventuali abusi edilizi
- Preparazione documentazione asta e presentazione
- Partecipazione e assistenza in asta
- Gestione della gara
- Gestione completa del post-asta
- Decreto di trasferimento e cancellazioni ipotecarie
- Ritiro e consegna delle chiavi
- Allacciamento utenze

Per gli immobili acquistati tramite aste giudiziarie è possibile fare sia mutuo che finanziamento come se acquistassi sul libero mercato,possiamo anche aiutarti a trovare una soluzione.

Domus Consulenze
Investimenti Immobiliari
www.domusconsulenzeaste.it
011-0461913
347-1450969



Caratteristiche principali
Codice:
547/2025 U TO
Città:
Torino (San Paolo)
Categoria:
Appartamento
Locali:
4,5
Camere:
2
Bagni:
1
Mq:
96
Balconi:
2
Piano:
4
Classe energetica:
E
Stato Immobile:
Buono
Grado:
Medio
Riscaldamento:
Centralizzato
Tipo Riscaldam.:
Caldaia
Tipo Impianto:
Radiatori
Fonte Energetica:
Gas
Acqua Calda:
Autonoma
Raffrescamento:
No
Infissi:
Legno
Serramenti:
Mediocre
Persiana:
Tapparella Legno
Accessori
Ascensore
Mappa
Corso RACCONIGI, 180BIS - Torino (TO)
Richiedi informazioni
Cookie preference